Beschreibung
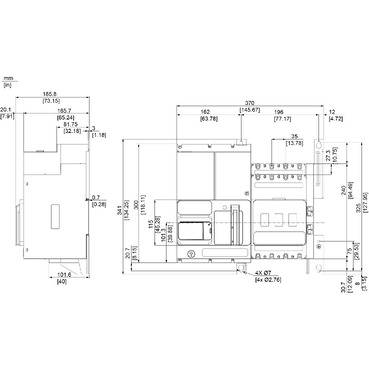
Der TA25D3L2502TPE ist ein Niederspannungs-Netzumschalter, der in Industrie- und Gewerbegebäuden, Rechenzentren, Gesundheitseinrichtungen und im Transportwesen eingesetzt wird. Die Nennbetriebsspannung (Ue) beträgt 230VAC bei 50/60Hz. Dieser Netzumschalter ist zum Betrieb in der Gebrauchskategorie AC-33B geeignet. Der Nennstrom (Ie) beträgt 250A (Ie) bei 60℃, mit 250A Baugröße. Auf der Vorderseite befindet sich ein eingebautes LCD-Displaymodul, das zur Anzeige des Status und der Alarmeinstellung sowie zur Steuerung per Drucktaste dient. Dieser Umschalter verfügt über 3 Kontaktpositionen auf der Vorderseite mit mechanischer und elektrischer Anzeige. Er kann auf einer Din-Schiene oder Platte befestigt und im Stromverteilerschrank positioniert werden. Es gibt auch einige optionale Zubehörteile für verschiedene Anwendungsbereiche. Diese 3-polige Version ist 370mm (Breite) x 341mm (Höhe) x 185,8mm (Tiefe). Es entspricht der Norm IEC 60947-6-1 und ist durch CE/CB/CCC zertifiziert. Es eignet sich für die Stromübertragung von Sicherheitslasten wie Feuerlöschanlagen, Rauchabzugsventilatoren, Sprinklerpumpen, Notbeleuchtungen usw.