Beschreibung
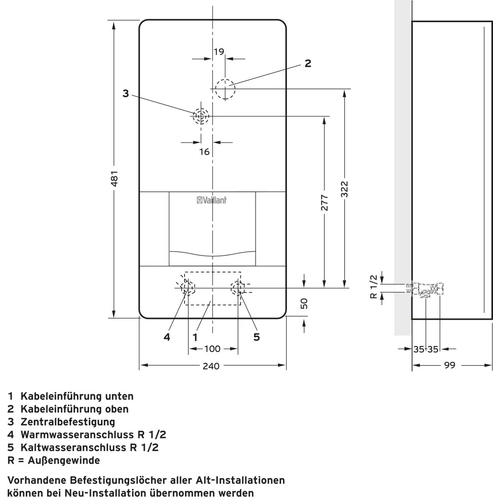
electronicVED E 21/8 BB pro Elektro-Durchlauferhitzer elektr. gest. Elektro-Durchlauferhitzer elektr. gest. Produktvorteile, Warmwasserkomfort: Fixe Auslauftemperatur bei 55 Grd.C bis zur Leistungsgrenze, Energie- und Wasserersparnis von bis zu 30% gegenüber hydraulischen Durchlauferhitzern, Einfache und schnelle Wartung durch gute Zugänglichkeit leicht austausch- barer Komponenten, Automatische Luftblasenerkennung bei allen elektronischen Geräten Ausstattung, Fixtemperatur 55 Grd.C, Elektronische Leistungssteuerung, Installationsystem PRO I für maximale Montagefreundlichkeit: variabler Elektroanschluss, Klapprahmen, drehbare Haube, Geeignet für Kunststoffrohrsysteme nach DIN 1988 und DIN 16892/16893, Strahlwasserschutz IP 25 D ermöglicht uneingeschränkte Installation im Schutzbereich 1, UV-lichtbeständige Gerätehaube (kein vergilben durch UV-Einstrahlung) Heizleistung 21 kW Netzspannung 3/PE 400 V/50 Hz Auslauftemperatur (min/max) 35/55 Gr. Kalt-/Warmwasseranschluss R 1/2 Schutzart IP 25 Höhe/Breite/Tiefe 481/240/99 mm Gewicht 4,4 kg Warmwasserbereitungs-Energie- effizienzklasse A (Spektrum A+ bis F)
Für den Betrieb dieses Durchlauferhitzers bedarf es eines Drei-Phasen-Wechselstromanschlusses.
Die Installation eines solchen starkstrombetriebenen Durchlauferhitzers bedarf der Zustimmung des Netzbetreibers und darf nur durch den Netzbetreiber oder ein in das Installateurverzeichnis des Netzbetreibers eingetragenes Installationsunternehmen vorgenommen werden.